Home
Aktuell
Projekte
Neubau
Umbau
Öffentliche Bauten
Werkliste
Büro
Team
Dienstleistung
Kontakt
Home
Aktuell
Projekte
Neubau
Umbau
Öffentliche Bauten
Werkliste
Büro
Home
Aktuell
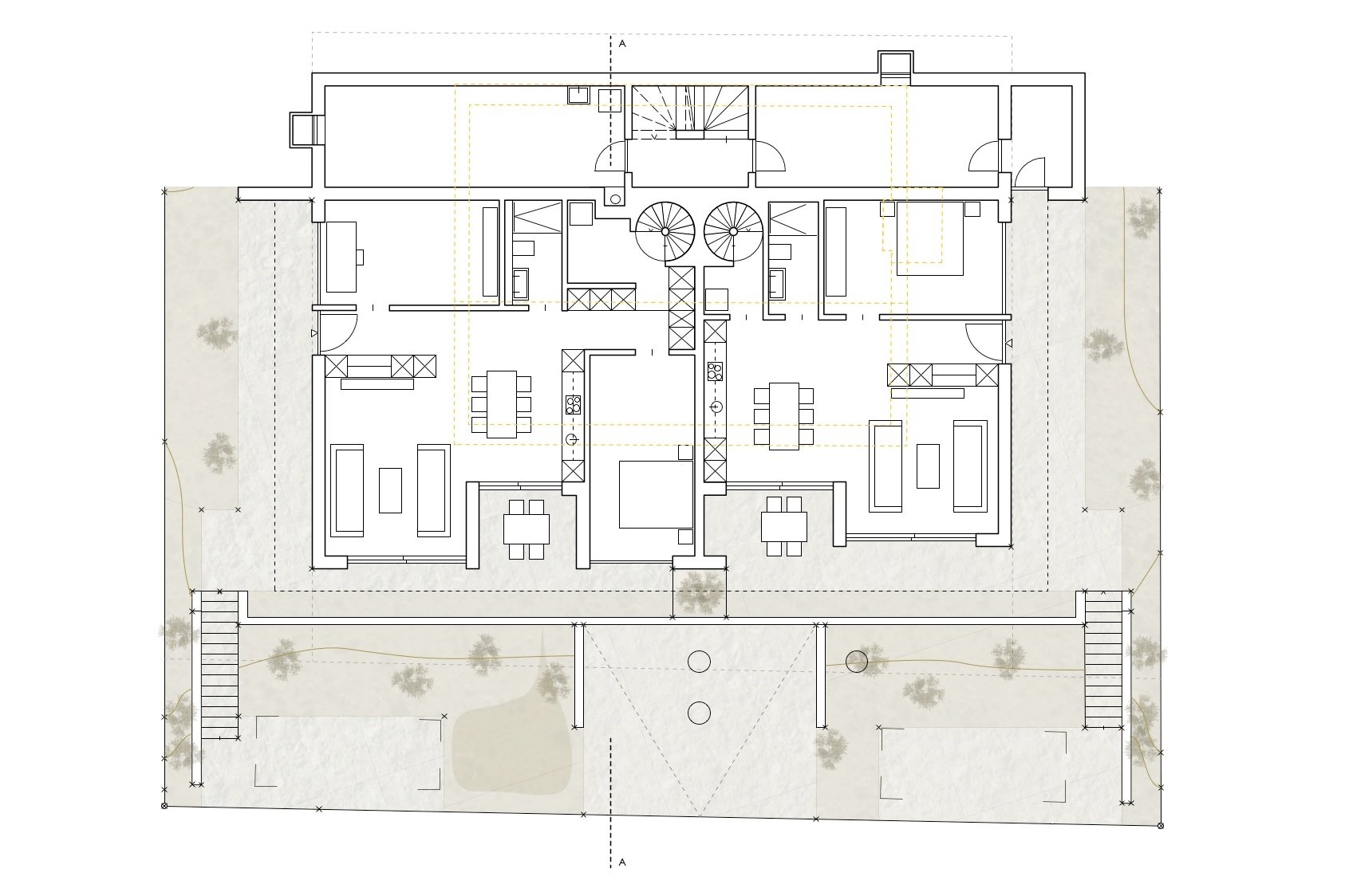
Terrassenhaus Kirchdorf
Nach oben scrollen
zuklappen